
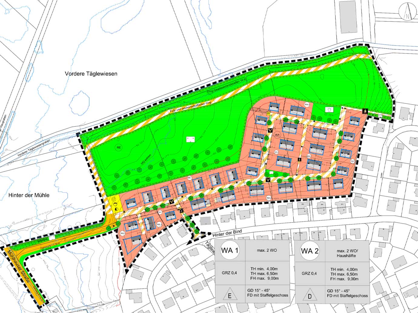
Neubaugebiet Bettenäcker
Hier finden Sie alle Unterlagen zur Bürgerinformationsveranstaltung am 1. Juli 2025 zum Neubaugebiet Bettenäcker in Schlatt unter Krähen.
Vollsperrung Hohenkrähenstraße: Umleitung im Stadt- und Regionalbusverkehr
Gelungener Abschluss der Jahresausstellung Singener Maler und Gäste
Wertstoffhof geschlossen
Abschluss der Leseaktion „HEISS AUF LESEN“
Der Hegau bekommt seinen eigenen Wanderpodcast
Aktuelle Veranstaltungen
Gesucht und nicht gefunden?